|
Дата последней публикации объявления 01.01.2026 — оно уже неактуально.
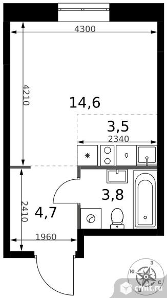
Перейти к актуальным объявлениям рубрики Квартиры. 1-комнатная квартира 26,6 кв.м
Поделиться:
Расположение:
Москва г., ул. Монтажная / ул. Амурская
Комнат:
Тип:
Тип жилья:
Кухня-студия:
нет
Отделка:
Лифт:
да
Охрана/консьержка:
нет
Цена:
12 584 460 руб.
Прямая продажа от застройщика!
Жилой Комплекс Комфорт класса. Продаётся 1-к квартира номер 702 общей площадью 26.6 кв.м. на 20-м этаже 32 этажного дома. Отделка Whitebox. Особенности квартиры: - Линейная планировка - максимальная функциональность и удобство. - Гибкая планировка - создайте пространство по своему вкусу. - Место для игры/занятия спортом - идеальное пространство для активных детей. - Можно оборудовать рабочее место - комфорт для работы и учёбы. - Линейная кухня - функциональность и практичность в одном решении. - Ниша под шкаф - компактное и удобное место для вещей. Квартира с предчистовой отделкой (White box). Вам не придется заниматься черновыми и трудоёмкими работы, а чистовую отделку и дизайн - сделайте на свой вкус. Информация о комплексе: Современный архитектурный проект «1-й Измайловский» - идеальное место для проживания, расположенное в восточной части Москвы в окружении 14 000 гектаров леса. Комплекс пронизан атмосферой здорового образа жизни и благополучия. Сиреневый сад и близлежащие лесопарки - это места, где можно насладиться лыжными прогулками зимой и тонизирующими пробежками летом. Расположенный между Щелковским шоссе и Амурской улицей, «1-й Измайловский» осмысляет себя не столько через близость к городским точкам притяжения, сколько через соседство с зелеными пространствами и спортивными объектами. Он отгорожен от шоссе застройкой первой линии и собственными садами здоровья. В его окнах - изумрудное море парка «Лосиный остров» и густые кроны окрестных дворов. В его графике - занятия спортом и прогулки в Измайлове. Транспортная доступность: Не более 2,5 км до станций метро «Щёлковская» и «Черкизовская» и МЦК «Локомотив». Щёлковское шоссе соединяет квартал с Северо-восточной хордой и МКАД, Центральным автовокзалом и Восточным железнодорожным вокзалом. Две автобусные остановки в паре минут ходьбы и 11 маршрутов общественного транспорта. На автомобиле 3 минуты до СВХ 12 минут до ТТК 15 минут до Садового кольца Внутренняя инфраструктура: Комплекс находится в исторически сложившемся районе Москвы с хорошим качеством и плотностью инфраструктуры. Торговые центры и сетевые магазины -6 детских садов, включая собственный детский сад на 125 мест -3 школы, включая собственную школу -Поликлиники и медицинские центры -Парки и зоны отдыха Расположение архитектурного проекта создает все условия для тех, кто стремится к здоровому образу жизни и для тех, кто уже сделал выбор в его пользу. В ближайшем окружении расположены несколько стадионов и множество спортивных объектов для занятий спортом на любой вкус: от всеми любимого футбола, баскетбола и до конного спорта. В окружении проекта более 30 километров организованных беговых и велодорожек. Застройщик: ООО "СПЕЦИАЛИЗИРОВАННЫЙ ЗАСТРОЙЩИК "СЕВЕРО-ЗАПАД СТОЛИЦЫ". Проектная декларация на сайте наш.дом.рф 04.12.2025 01:36
Этот сайт защищён reCAPTCHA. Конфиденциальность и условия использования. |
