|
Дата последней публикации объявления 01.09.2025 — оно уже неактуально.
Перейти к актуальным объявлениям рубрики Квартиры. Новые объявления в рубрике Квартиры
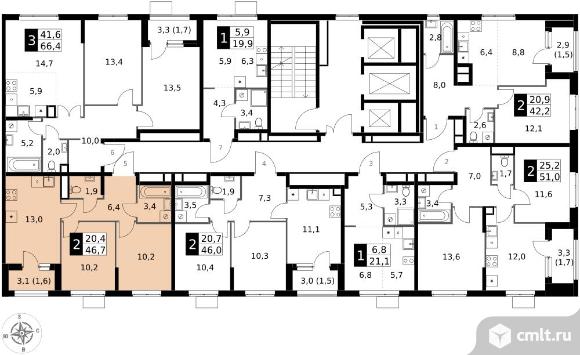
2-комнатная квартира 46,7 кв.м - ЖК "1-й Измайловский"
Поделиться:
Расположение:
Москва г., Монтажная ул., вл. 8/24
Комнат:
Тип:
Балкон:
балкон
Тип жилья:
Кухня-студия:
нет
Отделка:
Лифт:
да
Охрана/консьержка:
нет
Подходит под ипотеку:
да
Срок сдачи:
сентябрь 2028
Цена:
15 107 217 руб.
Рассрочка от застройщика. Прямая продажа от застройщика! Жилой Комплекс Комфорт класса. Продаётся 2-к квартира №301 общей площадью 46.7 кв.м на 20-м этаже 25 этажного дома. Без отделки. Особенности: - Квартира доступна к покупке в Trade-In. - Линейная планировка - максимальная функциональность и удобство. - Раздельный санузел - Можно оборудовать рабочее место - комфорт для работы и учёбы. - Просторная кухня - место для семейных ужинов и кулинарных экспериментов. - Стандартное количество квартир на этаже - оптимальный выбор для городской жизни. - Лоджия - уютное место для отдыха и тишины. - Вид из окна: двор - Вид из окна: внутренняя площадь - Вид из окна: прогулочный маршрут - Вид из окна на соседний корпус - Вид из окна: город - Вид из окна: улица - Больше света с окнами 50 см от пола - Дома с высокой стадией готовности. Сдача в 2026 году Квартира без отделки. Чистый холст для воплощения интерьера вашей мечты. Расположение комплекса: Современный архитектурный проект «1-й Измайловский» - идеальное место для проживания, расположенное в восточной части Москвы в окружении 14 000 гектаров леса. Комплекс пронизан атмосферой здорового образа жизни и благополучия. Сиреневый сад и близлежащие лесопарки - это места, где можно насладиться лыжными прогулками зимой и тонизирующими пробежками летом. Расположенный между Щелковским шоссе и Амурской улицей, «1-й Измайловский» осмысляет себя не столько через близость к городским точкам притяжения, сколько через соседство с зелеными пространствами и спортивными объектами. Он отгорожен от шоссе застройкой первой линии и собственными садами здоровья. В его окнах - изумрудное море парка «Лосиный остров» и густые кроны окрестных дворов. В его графике - занятия спортом и прогулки в Измайлове. Транспортная доступность: Не более 2,5 км до станций метро "Черкизовская", МЦК "Локомотив" и метро "Щёлковская". Щёлковское шоссе соединяет квартал с Северо-восточной хордой и МКАД, Центральным автовокзалом и Восточным железнодорожным вокзалом. Две автобусные остановки в паре минут ходьбы и 11 маршрутов общественного транспорта. На автомобиле: 3 минуты до СВХ 12 минут до ТТК 15 минут до Садового кольца Внутренняя инфраструктура: Комплекс находится в исторически сложившемся районе Москвы с хорошим качеством и плотностью инфраструктуры. Торговые центры и сетевые магазины: - 6 детских садов, включая собственный детский сад на 125 мест - 3 школы, включая собственную школу - Поликлиники и медицинские центры - Парки и зоны отдыха Расположение архитектурного проекта создает все условия для тех, кто стремится к здоровому образу жизни и для тех, кто уже сделал выбор в его пользу. В ближайшем окружении расположены несколько стадионов и множество спортивных объектов для занятий спортом на любой вкус: от всеми любимого футбола, баскетбола и до конного спорта. В окружении проекта более 30 километров организованных беговых и велодорожек. Застройщик: ООО "СПЕЦИАЛИЗИРОВАННЫЙ ЗАСТРОЙЩИК "СЕВЕРО-ЗАПАД СТОЛИЦЫ". Проектная декларация на сайте наш.дом.рф
Адрес сайта скрыт, так как объявление не публикуется.
02.08.2025 05:17
Этот сайт защищён reCAPTCHA. Конфиденциальность и условия использования. |
