|
Дата последней публикации объявления 01.09.2025 — оно уже неактуально.
Перейти к актуальным объявлениям рубрики Квартиры. Новые объявления в рубрике Квартиры
2-комнатная квартира 44,7 кв.м - ЖК "1-й Измайловский"
Поделиться:
Расположение:
Москва г., Монтажная ул., вл. 8/24
Комнат:
Тип:
Балкон:
балкон
Тип жилья:
Кухня-студия:
нет
Лифт:
да
Охрана/консьержка:
нет
Подходит под ипотеку:
да
Срок сдачи:
сентябрь 2028
Цена:
15 708 966 руб.
Рассрочка от застройщика.
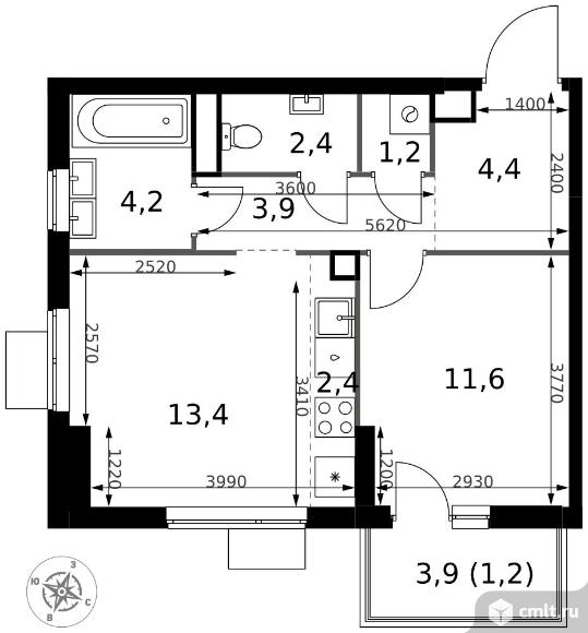
Прямая продажа от застройщика! Жилой Комплекс Комфорт класса. Продаётся 2-к квартира №930 общей площадью 44.7 кв.м на 7-м этаже 25 этажного дома. Отделка Whitebox. Особенности: - Квартира доступна к покупке в Trade-In. - Угловая планировка - больше пространства для ваших идей. - Увеличенное число окон - Окно в ванной - натуральное освещение для уюта и комфорта. - Раздельный санузел - Постирочная - организуйте пространство для стирки и сушки вещей. - Место для игры/занятия спортом - идеальное пространство для активных детей. - Евроформат - просторное и удобное жилье с отличной планировкой. - Возможность добавить спальное место - дополнительный комфорт для гостей. - Линейная кухня - функциональность и практичность в одном решении. - Стандартное количество квартир на этаже - оптимальный выбор для городской жизни. - Балкон - открытое пространство для отдыха. - Вид из окна: двор - Вид из окна: прогулочный маршрут - Вид из окна на детский сад - Вид из окна: природный комплекс - Вид из окна: соседняя секция - Больше света с окнами 50 см от пола - Дома с высокой стадией готовности. Сдача в 2026 году Квартира с предчистовой отделкой (White box). Вам не придётся заниматься черновыми трудоёмкими работами, а чистовую отделку и дизайн сделаете по своему вкусу. Расположение комплекса: Современный архитектурный проект «1-й Измайловский» - идеальное место для проживания, расположенное в восточной части Москвы в окружении 14 000 гектаров леса. Комплекс пронизан атмосферой здорового образа жизни и благополучия. Сиреневый сад и близлежащие лесопарки - это места, где можно насладиться лыжными прогулками зимой и тонизирующими пробежками летом. Расположенный между Щелковским шоссе и Амурской улицей, «1-й Измайловский» осмысляет себя не столько через близость к городским точкам притяжения, сколько через соседство с зелеными пространствами и спортивными объектами. Он отгорожен от шоссе застройкой первой линии и собственными садами здоровья. В его окнах - изумрудное море парка «Лосиный остров» и густые кроны окрестных дворов. В его графике - занятия спортом и прогулки в Измайлове. Транспортная доступность: Не более 2,5 км до станций метро "Черкизовская", МЦК "Локомотив" и метро "Щёлковская". Щёлковское шоссе соединяет квартал с Северо-восточной хордой и МКАД, Центральным автовокзалом и Восточным железнодорожным вокзалом. Две автобусные остановки в паре минут ходьбы и 11 маршрутов общественного транспорта. На автомобиле: 3 минуты до СВХ 12 минут до ТТК 15 минут до Садового кольца Внутренняя инфраструктура: Комплекс находится в исторически сложившемся районе Москвы с хорошим качеством и плотностью инфраструктуры. Застройщик: ООО "СПЕЦИАЛИЗИРОВАННЫЙ ЗАСТРОЙЩИК "СЕВЕРО-ЗАПАД СТОЛИЦЫ". Проектная декларация на сайте наш.дом.рф
Адрес сайта скрыт, так как объявление не публикуется.
02.08.2025 05:18
Этот сайт защищён reCAPTCHA. Конфиденциальность и условия использования. |
