|
Дата последней публикации объявления 01.09.2025 — оно уже неактуально.
Перейти к актуальным объявлениям рубрики Квартиры. Новые объявления в рубрике Квартиры
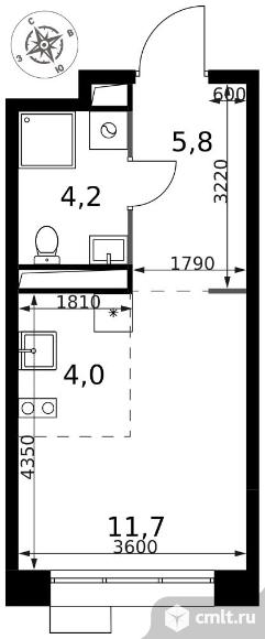
1-комнатная квартира 25,7 кв.м - ЖК "1-й Саларьевский"
Поделиться:
Расположение:
Москва г., квартал № 70
Комнат:
Тип:
Тип жилья:
Кухня-студия:
Отделка:
Лифт:
да
Охрана/консьержка:
нет
Подходит под ипотеку:
да
Срок сдачи:
июнь 2027
Цена:
10 664 472 руб.
Максимальные скидки при 100% оплате.
Рассрочка от застройщика. Прямая продажа от застройщика! Жилой Комплекс класса Комфорт+. Первый взнос за счет застройщика. Продаётся студия №593 общей площадью 25.7 кв.м на 21-м этаже 21 этажного дома. Без отделки. Особенности: - Квартира доступна к покупке в Trade-In. - Линейная планировка - максимальная функциональность и удобство. - Увеличенная ширина окна/окон - больше света и визуального простора. - Увеличенная высота потолков - ощущение простора и легкости. - Можно оборудовать рабочее место - комфорт для работы и учёбы. - Стандартное количество квартир на этаже - оптимальный выбор для городской жизни. - Ниша под шкаф - компактное и удобное место для вещей. - Вид из окна: двор - Вид из окна на лес - Вид из окна на соседний корпус - Вид из окна: область - Вид из окна: соседняя секция - Вид из окна: ижс - Вид из окна: променад - Вид из окна: парковка - Вид из окна на шоссе - Вид из окна на торговый центр - Вид из окна: склад - Вид из окна: улица - Вид из окна на бульвар Квартира без отделки. Чистый холст для воплощения интерьера вашей мечты. Расположение комплекса: Весь микрорайон спроектирован в концепции «без машин». Пейзаж не портят припаркованные автомобили, а родители могут не опасаться за перемещение детей по всему кварталу. Территория комплекса - царство пешеходов. А что делать, если Вы или Вам подвезли что?то габаритное? Проблему решают сквозные подъезды, открывающие доступ в здание с внешней стороны комплекса. Проезд к домам организован по внешнему контуру микрорайона. Места для автомобилей отведены на 7 этажах наземного паркинга и в подземном паркинге 6-го корпуса. За порядком и безопасностью зорко следит множество камер. Безбарьерная среда облегчает передвижение по территории молодых родителей с колясками, маленьких детей и жильцов с ограниченными возможностями. Транспортная доступность: «1-й Саларьевский» расположен в Новой Москве всего в 2 км от МКАД и 5 минутах ходьбы от метро Саларьево. Если Вы за рулем, для Вас удобный выезд на скоростное Киевское шоссе. Передвигаетесь не на автомобиле? Станция метро Саларьево и автовокзал в пешей доступности. У метро находится один из крупнейших ТЦ Новой Москвы «Саларис». Это значит, что всевозможные покупки и разнообразные развлечения для всей семьи тоже рядом. Личный автотранспорт: До Киевского шоссе - 0,2 км До МКАД - 2,4 км До Калужского шоссе - 5 км До Ленинского проспекта - 3,2 км Общественный транспорт: До станции метро «Саларьево» - 5 мин пешком До остановок наземного транспорта - 5-10 мин пешком До Ленинского проспекта на автобусе - 10 мин Внутренняя инфраструктура: Во дворе царит атмосфера легкого беззаботного настроения. По сторонам расположились любимые местными жителями магазинчики, где можно купить товары первой необходимости, кафе, где приятно посидеть с друзьями, и кофе-пойнты. Застройщик: ООО "СПЕЦИАЛИЗИРОВАННЫЙ ЗАСТРОЙЩИК "ЮГО-ЗАПАД СТОЛИЦЫ". Проектная декларация на сайте наш.дом.рф
Адрес сайта скрыт, так как объявление не публикуется.
13.08.2025 06:02
Этот сайт защищён reCAPTCHA. Конфиденциальность и условия использования. |
