Продаю торговое помещение
Поделиться:
Расположение:
Воронежская обл., Воронеж г., Центральный р-н, Ломоносова ул., 117
Код объекта: 1933469.
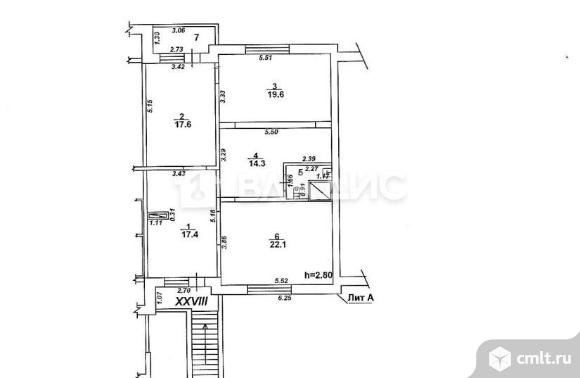
Прeдлагаетcя к пpодаже помещeние cвободногo нaзначeния г. Воронеж ул. Ломоносова, 117 Состав помещений: 1 Торговое помещение 17.4 2 Складское 17.6 3 Торговый зал 19.6 4 Торговый зал 14.3 5 Санузел 2.7 6 Торговый зал 22,1 7 Балкон 3.8 Конструктивные элементы: Стены кирпичные, перегородки гипсолитовые. Перекрытия из сборных железобетонных плит. Отмостка и навес крыльца Отделочные работы оконные пластиковые блоки дверные филенчатые, окрашены внутренние - штукатурка, побелка, обои, линолиум, плитка; Внутреннее санитарно-техническое и электрическое устройство: центральное отопление от собственной котельной, водопровод от центральной городской сети, канализация сброс в городскую сеть, электроснабжение проводка скрытая Месторасположение: • В 10 минутах ходьбы от дома расположены: школа Содружество, парк «Дендрарий», областная детская больница № 1, Воронежский государственный аграрный университет и Воронежский государственный лесотехнический университет им. Г. Ф. Морозова; • Удобные заезды на ключевые магистрали: Московский проспект и улица Ломоносова – обеспечивают превосходную транспортную доступность; • В семи минутах ходьбы остановка общественного транспорта. Более 8 маршрутов общественного транспорта позволят без суеты добраться в любую точку города; • В районе уже сформирована инфраструктура: продуктовые магазины, аптеки, кафе, поликлиники, детские центры и другие повседневные сервисы. Помещение с постоянным арендатором. Отличный вариант для инвестиций! 02.12.2025 10:08
Этот сайт защищён reCAPTCHA. Конфиденциальность и условия использования. Похожие объявления автора
|
||||||||||||||
