|
Дата последней публикации объявления 01.09.2025 — оно уже неактуально.
Перейти к актуальным объявлениям рубрики Квартиры. 3-комнатная квартира 79,9 кв.м - ЖК "1-й Саларьевский"
Поделиться:
Расположение:
Москва г., квартал № 70
Максимальные скидки при 100% оплате.
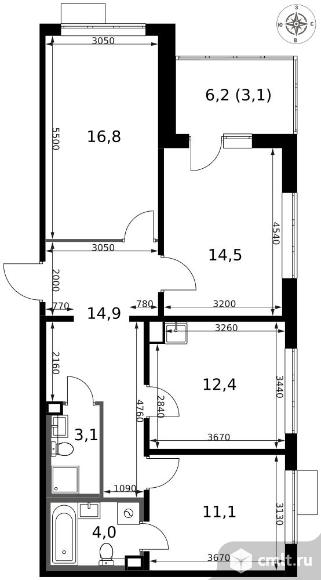
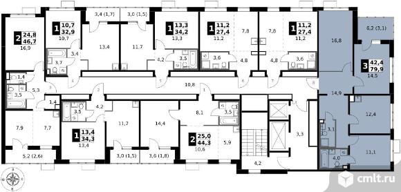
Рассрочка от застройщика. Прямая продажа от застройщика! Жилой Комплекс класса Комфорт+. Первый взнос за счет застройщика. Продаётся 3-к квартира №281 общей площадью 79.9 кв.м на 12-м этаже 12 этажного дома. Отделка Whitebox. Особенности: - Квартира доступна к покупке в Trade-In. - Мастер-зона с санузлом. Уют и комфорт в одном пространстве. - Угловая планировка - больше пространства для ваших идей. - Увеличенная ширина окна/окон - больше света и визуального простора. - Увеличенное число окон - Душ помимо ванной - дополнительное удобство для вашей семьи. - Можно оборудовать 2 или более рабочих места - пространство для нескольких человек. - Увеличенная высота потолков - ощущение простора и легкости. - Можно оборудовать рабочее место - комфорт для работы и учёбы. - Просторная мягкая зона - комфорт и уют для отдыха всей семьи. - Линейная кухня - функциональность и практичность в одном решении. - Просторная кухня - место для семейных ужинов и кулинарных экспериментов. - Наличие острова на кухне - удобство и стиль для вашей кухни. - Стандартное количество квартир на этаже - оптимальный выбор для городской жизни. - Ниша под шкаф - компактное и удобное место для вещей. - Просторная лоджия - идеальное место для уютных вечеров. - Вид из окна: школа - Вид из окна на детский сад - Вид из окна: главная улица - Вид из окна на соседний ЖК - Вид из окна: променад - Вид из окна на шоссе - Вид из окна: деревня - Вид из окна: котельная - Вид из окна на торговый центр - Вид из окна: улица Квартира с предчистовой отделкой (White box). Вам не придётся заниматься черновыми трудоёмкими работами, а чистовую отделку и дизайн сделаете по своему вкусу. Расположение комплекса: Весь микрорайон спроектирован в концепции «без машин». Пейзаж не портят припаркованные автомобили, а родители могут не опасаться за перемещение детей по всему кварталу. Территория комплекса - царство пешеходов. А что делать, если Вы или Вам подвезли что?то габаритное? Проблему решают сквозные подъезды, открывающие доступ в здание с внешней стороны комплекса. Проезд к домам организован по внешнему контуру микрорайона. Места для автомобилей отведены на 7 этажах наземного паркинга и в подземном паркинге 6-го корпуса. За порядком и безопасностью зорко следит множество камер. Безбарьерная среда облегчает передвижение по территории молодых родителей с колясками, маленьких детей и жильцов с ограниченными возможностями. Транспортная доступность: «1-й Саларьевский» расположен в Новой Москве всего в 2 км от МКАД и 5 минутах ходьбы от метро Саларьево. Если Вы за рулем, для Вас удобный выезд на скоростное Киевское шоссе. Передвигаетесь не на автомобиле? Станция метро Саларьево и автовокзал в пешей доступности. У метро находится один из крупнейших ТЦ Новой Москвы «Саларис». Это значит, что всевозможные покупки и разнообразные развлечения для всей семьи тоже рядом. Застройщик: ООО "СПЕЦИАЛИЗИРОВАННЫЙ ЗАСТРОЙЩИК "ЮГО-ЗАПАД СТОЛИЦЫ". Проектная декларация на сайте наш.дом.рф
Адрес сайта скрыт, так как объявление не публикуется.
02.08.2025 05:12
Этот сайт защищён reCAPTCHA. Конфиденциальность и условия использования. |
