|
Дата последней публикации объявления 01.06.2025 — оно уже неактуально.
Перейти к актуальным объявлениям рубрики Квартиры. 4-комнатная квартира 101,2 кв.м - ЖК «Римский»
Поделиться:
Расположение:
Московская обл., Ленинский р-н, Развилка п., Римский проезд, 5с1
Комнат:
Тип:
Балкон:
балкон
Тип жилья:
Кухня-студия:
нет
Отделка:
Лифт:
да
Охрана/консьержка:
нет
Подходит под ипотеку:
да
Срок сдачи:
март 2024
Цена:
21 078 082 руб.
Готовы показать объект онлайн.
Договоритесь с продавцом, в какое время и в какой программе это сделать.
2-х уровневые пентхаусы от 10,5 млн.руб
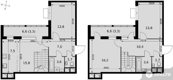
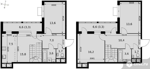
Рассрочка от застройщика. Готовый дом! Прямая продажа от застройщика! Жилой Комплекс класса Комфорт. Продаётся 4-к квартира №549 в сданном корпусе общей площадью 101.2 кв.м на 15-м этаже 16 этажного дома. Подходит для инвестиции – 2 уровня можно разбить на 2 самостоятельные квартиры, что повысит, помимо всего остального, итоговую инвест.привлекательность проекта. Особенности: - Квартира доступна к покупке в Trade-In. - Просторная спальня, в которой можно разместить большую кровать. - Угловая планировка - больше пространства для ваших идей. - Раздельный санузел - Возможность установить вторую раковину или биде - удобство для всей семьи. - Гостевой санузел - комфорт и удобство для ваших гостей. - Рабочий кабинет - место для работы и сосредоточения. - Можно оборудовать 2 или более рабочих места - пространство для нескольких человек. - Место для игры/занятия спортом - идеальное пространство для активных детей. - Увеличенная высота потолков - ощущение простора и легкости. - Можно оборудовать рабочее место - комфорт для работы и учёбы. - Дополнительный вход - удобство для семьи и гостей. - Гибкая планировка - создайте пространство по своему вкусу. - Евроформат - просторное и удобное жилье с отличной планировкой. - Двухуровневая квартира - пространство и стиль в одном. - Кухня-гостиная - идеальное пространство для встреч с близкими. - Линейная кухня - функциональность и практичность в одном решении. - Наличие острова на кухне - удобство и стиль для вашей кухни. - Ниша под шкаф - компактное и удобное место для вещей. - Лоджия - уютное место для отдыха и тишины. - Вид из окна на соседний корпус Расположение комплекса: Архитекторы позаботились, чтобы красота и комфорт стали частью повседневной жизни жителя Римского квартала. Входные группы индивидуальны, однако в дизайне каждой угадывается итальянская любовь к декоративности и качественным отделочным материалам. Мы заботимся о свободном пространстве в вашей квартире, поэтому наличие кладовых позволит вам поддерживать идеальный порядок и уют в вашей квартире! На нижнем уровне комплекса проходят проезды, соединяющие весь квартал и расположены парковки. Дизайн подземных парковок с белоснежными колоннами вызывает ассоциации с историческим культурным слоем романской эпохи. Поэтому даже здесь вас не будет покидать ощущение особого места. Кладовые помещения находятся в каждой секции, доступ к ним осуществляется на современном лифте МЭЛ с пониженным уровнем шума. Бурная жизнь соседей больше не сможет нарушить ваш покой, а к вам никто не постучит, если вы захотите прибавить громкость в любимом музыкальном треке или Ваши дети захотят устроить ночную пробежку! Живите только по своим правилам. Транспортная доступность: Всего 2 км от МКАД, 15 минут на транспорте до метро «Домодедовская» и «Марьино» Внутренняя инфраструктура: Жителей Римского квартала отличает неспешность.
Адрес сайта скрыт, так как объявление не публикуется.
20.05.2025 07:11
Этот сайт защищён reCAPTCHA. Конфиденциальность и условия использования. |
