|
Дата последней публикации объявления 01.01.2026 — оно уже неактуально.
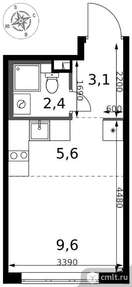
Перейти к актуальным объявлениям рубрики Квартиры. 1-комнатная квартира 20,7 кв.м
Поделиться:
Расположение:
Московская обл., Химки г., квартал Международный, 10 км до МКАД
Комнат:
Тип:
Тип жилья:
Кухня-студия:
нет
Лифт:
да
Охрана/консьержка:
нет
Цена:
4 467 060 руб.
Прямая продажа от застройщика!
Жилой Комплекс класса Комфорт. Продаётся 1-к квартира номер 302 общей площадью 20.7 кв.м. на 2-м этаже 6 этажного дома. Отделка Whitebox. Цена с учётом скидки! Особенности квартиры: - Линейная планировка - максимальная функциональность и удобство. Квартира с предчистовой отделкой (White box). Вам не придется заниматься черновыми и трудоёмкими работы, а чистовую отделку и дизайн - сделайте на свой вкус. Информация о комплексе: Квартал класса комфорт плюс, где современное городское пространство граничит с удивительной природой вокруг. 1-й Химкинский расположен на территории в 102 га и органично вписан в природное окружение Химкинского леса и канала им. Москвы. В проекте предусмотрена богатая коммерческая инфраструктура с собственным торговым центром, общеобразовательные учреждения и социальные объекты. Изюминкой жилого комплекса будут спортивно-оздоровительный комплекс с термами и SPA и семейный парк развлечений. Транспортная доступность: ЖК «1-й Химкинский» дает возможность выбрать любой способ передвижения как до города, так и до самых разных объектов, которые могут представлять интерес для его жителей. Не важно, какой способ передвижения вы предпочитаете, успевать всегда и везде можно вне зависимости от выбора транспорта. - 8 мин. пешком (800 м) до остановки «Золотая Арка» -10 мин пешком (1 км) до остановки «Поворот на Ивакино» Внутренняя инфраструктура: - Безопасность: закрытые дворы без машин, безбарьерная среда и сквозные подъезды, камеры на детских площадках с возможностью трансляции на смартфоне - Идеальный отдых в кругу семьи: семейный парк развлечений на территории, торговый центр (2-х этажный) общей площадью более 8 тыс. кв. м с фудкортом - Образование: 3 детских сада и современная муниципальная школа на 2450 мест - Спортивная среда: закольцованный веломаршрут с навигацией, спортивный комплекс с термами, закрытый тренажерный зал и зоны ворк-аута - Социальные объекты: поликлиника со станцией скорой помощи, пожарное депо - Подземный паркинг и кладовые помещения на -1 этаже, станция техобслуживания и автомойка на территории Застройщик: ООО "СПЕЦИАЛИЗИРОВАННЫЙ ЗАСТРОЙЩИК ШЕРЕМЕТЬЕВО-4". Проектная декларация на сайте наш.дом.рф 04.12.2025 01:37
Этот сайт защищён reCAPTCHA. Конфиденциальность и условия использования. |
