|
Дата последней публикации объявления 01.09.2025 — оно уже неактуально.
Перейти к актуальным объявлениям рубрики Квартиры. Новые объявления в рубрике Квартиры
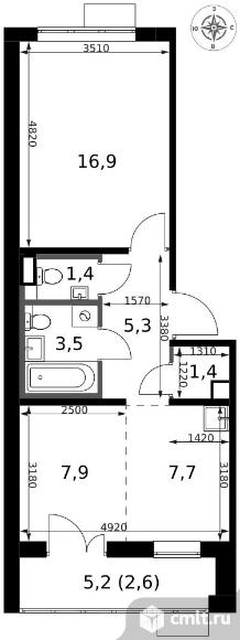
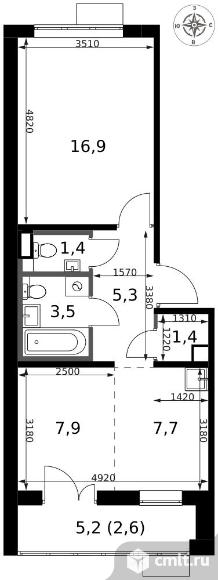
2-комнатная квартира 46,7 кв.м - ЖК "1-й Саларьевский"
Поделиться:
Расположение:
Москва г., квартал № 70
Максимальные скидки при 100% оплате.
Рассрочка от застройщика. Прямая продажа от застройщика! Жилой Комплекс класса Комфорт+. Первый взнос за счет застройщика. Продаётся 2-к квартира №196 общей площадью 46.7 кв.м на 2-м этаже 12 этажного дома. Отделка Whitebox. Особенности: - Квартира доступна к покупке в Trade-In. - Просторная спальня, в которой можно разместить большую кровать. - Распашная планировка - отличное сочетание удобства и свободы. - Увеличенное число окон - Гостевой санузел - комфорт и удобство для ваших гостей. - Гибкая планировка - создайте пространство по своему вкусу. - Евроформат - просторное и удобное жилье с отличной планировкой. - Кухня-гостиная - идеальное пространство для встреч с близкими. - Возможность добавить спальное место - дополнительный комфорт для гостей. - Линейная кухня - функциональность и практичность в одном решении. - Наличие острова на кухне - удобство и стиль для вашей кухни. - Стандартное количество квартир на этаже - оптимальный выбор для городской жизни. - Гардеробная - удобство для хранения и организации вещей. - Лоджия - уютное место для отдыха и тишины. - Вид из окна: двор - Вид из окна: школа - Вид из окна на детский сад - Вид из окна: улица Квартира с предчистовой отделкой (White box). Вам не придётся заниматься черновыми трудоёмкими работами, а чистовую отделку и дизайн сделаете по своему вкусу. Расположение комплекса: Весь микрорайон спроектирован в концепции «без машин». Пейзаж не портят припаркованные автомобили, а родители могут не опасаться за перемещение детей по всему кварталу. Территория комплекса - царство пешеходов. А что делать, если Вы или Вам подвезли что?то габаритное? Проблему решают сквозные подъезды, открывающие доступ в здание с внешней стороны комплекса. Проезд к домам организован по внешнему контуру микрорайона. Места для автомобилей отведены на 7 этажах наземного паркинга и в подземном паркинге 6-го корпуса. За порядком и безопасностью зорко следит множество камер. Безбарьерная среда облегчает передвижение по территории молодых родителей с колясками, маленьких детей и жильцов с ограниченными возможностями. Транспортная доступность: «1-й Саларьевский» расположен в Новой Москве всего в 2 км от МКАД и 5 минутах ходьбы от метро Саларьево. Если Вы за рулем, для Вас удобный выезд на скоростное Киевское шоссе. Передвигаетесь не на автомобиле? Станция метро Саларьево и автовокзал в пешей доступности. У метро находится один из крупнейших ТЦ Новой Москвы «Саларис». Это значит, что всевозможные покупки и разнообразные развлечения для всей семьи тоже рядом. Личный автотранспорт: До Киевского шоссе - 0,2 км До МКАД - 2,4 км До Калужского шоссе - 5 км До Ленинского проспекта - 3,2 км Общественный транспорт: До станции метро «Саларьево» - 5 мин пешком До остановок наземного транспорта - 5-10 мин пешком До Ленинского проспекта на автобусе - 10 мин Внутренняя инфраструктура: Во дворе царит атмосфера легкого беззаботного настроения. Застройщик: ООО "СПЕЦИАЛИЗИРОВАННЫЙ ЗАСТРОЙЩИК "ЮГО-ЗАПАД СТОЛИЦЫ". Проектная декларация на сайте наш.дом.рф
Адрес сайта скрыт, так как объявление не публикуется.
02.08.2025 05:12
Этот сайт защищён reCAPTCHA. Конфиденциальность и условия использования. |
