|
Дата последней публикации объявления 01.01.2026 — оно уже неактуально.
Перейти к актуальным объявлениям рубрики Квартиры. Новые объявления в рубрике Квартиры
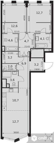
3-комнатная квартира 81 кв.м
Поделиться:
Расположение:
Москва г., ул. Шеногина
Комнат:
Тип:
Тип жилья:
Кухня-студия:
нет
Отделка:
Лифт:
да
Охрана/консьержка:
нет
Цена:
59 324 400 руб.
Прямая продажа от застройщика!
Жилой Комплекс премиум-класса. Продаётся 3-к квартира номер 291 общей площадью 81 кв.м. на 25-м этаже 26 этажного дома. Отделка Whitebox. Цена с учётом скидки! Особенности квартиры: - Мастер-зона с санузлом. Уют и комфорт в одном пространстве. - Распашная планировка - отличное сочетание удобства и свободы. - Увеличенное количество окон - дополнительное освещение и свежий воздух. - Гостевой санузел - комфорт и удобство для ваших гостей. - Душ помимо ванной - дополнительное удобство для вашей семьи. - Евроформат - просторное и удобное жилье с отличной планировкой. - Место для игры/занятия спортом - идеальное пространство для активных детей. - Можно оборудовать рабочее место - комфорт для работы и учёбы. - Возможность добавить спальное место - дополнительный комфорт для гостей. - Гардеробная - удобство для хранения и организации вещей. - Ниша под шкаф - компактное и удобное место для вещей. Квартира с предчистовой отделкой (White box). Вам не придется заниматься черновыми и трудоёмкими работы, а чистовую отделку и дизайн - сделайте на свой вкус. Информация о комплексе: Премиум-класс прямо на берегу Москвы-реки, с прямым выходом на набережную и потрясающими панорамными видами! На Шелепихинской набережной, расположен причал для речных трамваев. Вам станет доступна единственная столичная транспортная артерия, на которой никогда нет пробок: 20 минут до Москва-Сити, да еще и с вдохновляющими видами по пути. Входные группы домов - это индивидуальные дизайн-проекты, посвященные трем главным местам в жизни Лермонтова: Тарханам, Петербургу и Кавказу, которые объединяют сочетание эстетики и комфорта. Бурная жизнь соседей больше не сможет нарушить ваш покой, а к вам никто не постучит, если вы захотите прибавить громкость в любимом музыкальном треке или Ваши дети захотят устроить ночную пробежку! Живите только по своим правилам. В каждой квартире подключен базовый пакет “Умная квартира” забудьте о беспокойстве о протечке; настройте свои сценарии управления техникой и электричеством; общайтесь с “Умной квартирой” голосом; Можете легко расширить “базовый пакет” и подключить дополнительные опции и устройства, чтобы из любой точки мира управляй работой бытовых приборов и систем, например: включайте разогрев ужина; регулируйте яркость яркость света; регулируйте громкость музыки; настраивайте работу теплых полов; Транспортная доступность: В 50 м до новой станции метро «Звенигородская». Вторая улица от ЦАО и соседство с Москва-Сити. Все виды общественного транспорта, в том числе речные трамвайчики, в пешей доступности Внутренняя инфраструктура: Основная артерия жизни квартала - центральный бульвар. Вы с радостью обнаружите, что путь до престижных школ и вузов, развлечений и магазинов сжался до нескольких минут езды на машине. Застройщик: ООО СПЕЦИАЛИЗИРОВАННЫЙ ЗАСТРОЙЩИК ЛСО. Проектная декларация на сайте наш.дом.рф 04.12.2025 01:37
Этот сайт защищён reCAPTCHA. Конфиденциальность и условия использования. |
