|
Дата последней публикации объявления 01.09.2025 — оно уже неактуально.
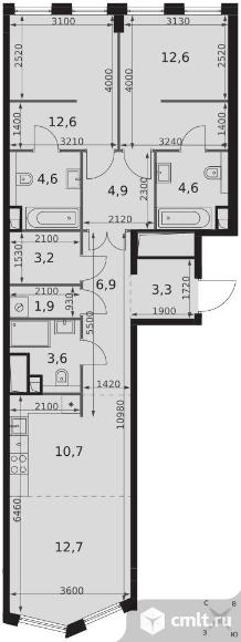
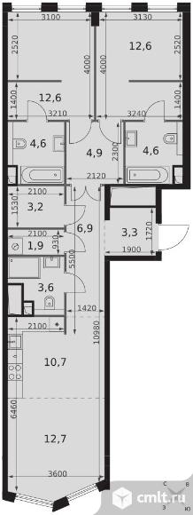
Перейти к актуальным объявлениям рубрики Квартиры. 3-комнатная квартира 81,6 кв.м - ЖК "Sydney City"
Поделиться:
Расположение:
Москва г., улица Шеногина, 2
Комнат:
Тип:
Тип жилья:
Кухня-студия:
нет
Лифт:
да
Охрана/консьержка:
нет
Подходит под ипотеку:
да
Срок сдачи:
декабрь 2025
Цена:
55 373 760 руб.
Максимальные скидки при 100% оплате.
Подходит под ипотеку. Рассрочка от застройщика. Прямая продажа от застройщика! Жилой Комплекс премиум-класса. Продаётся 3-к квартира №213 общей площадью 81.6 кв.м на 12-м этаже 26 этажного дома. Чистовая отделка. Особенности: - Квартира доступна к покупке в Trade-In. - Мастер-зона с санузлом. Уют и комфорт в одном пространстве. - Распашная планировка - отличное сочетание удобства и свободы. - Увеличенное число окон - Гостевой санузел - комфорт и удобство для ваших гостей. - Душ помимо ванной - дополнительное удобство для вашей семьи. - Место для игры/занятия спортом - идеальное пространство для активных детей. - Можно оборудовать рабочее место - комфорт для работы и учёбы. - Евроформат - просторное и удобное жилье с отличной планировкой. - Возможность добавить спальное место - дополнительный комфорт для гостей. - Стандартное количество квартир на этаже - оптимальный выбор для городской жизни. - Гардеробная - удобство для хранения и организации вещей. - Ниша под шкаф - компактное и удобное место для вещей. - Вид из окна: двор - Вид из окна: улица - Успей купить до отмены скидок - Планировка повышенной комфортности - Лидер продаж - Идеальная планировка - Готовые квартиры премиум-класса - Внесите больше – цена ниже. - Квартиры премиум-класса на Шелепихинской набережной Квартира с чистовой отделкой. Раскройте свою индивидуальность в создании своего уникального проекта, а трудоемкий ремонт мы возьмем на себя! Вы идете в ногу со временем и предпочитаете современные, универсальные дизайнерские решения? Или вы любитель строгой лаконичной классики? Тогда наши интерьеры придутся вам по душе! Выбирайте то, что ближе лично Вам и реализуйте свои задумки вместе с нами! Расположение комплекса: Премиум-класс прямо на берегу Москвы-реки, с прямым выходом на набережную и потрясающими панорамными видами! На Шелепихинской набережной, расположен причал для речных трамваев. Вам станет доступна единственная столичная транспортная артерия, на которой никогда нет пробок: 20 минут до Москва-Сити, да еще и с вдохновляющими видами по пути. Входные группы домов - это индивидуальные дизайн-проекты, посвященные трем главным местам в жизни Лермонтова: Тарханам, Петербургу и Кавказу, которые объединяют сочетание эстетики и комфорта. Бурная жизнь соседей больше не сможет нарушить ваш покой, а к вам никто не постучит, если вы захотите прибавить громкость в любимом музыкальном треке или Ваши дети захотят устроить ночную пробежку! Живите только по своим правилам. Застройщик: ООО СПЕЦИАЛИЗИРОВАННЫЙ ЗАСТРОЙЩИК ЛСО. Проектная декларация на сайте наш.дом.рф
Адрес сайта скрыт, так как объявление не публикуется.
26.08.2025 07:41
Этот сайт защищён reCAPTCHA. Конфиденциальность и условия использования. |
