|
Объявление удалено автором.
Дата последней публикации объявления 28.02.2026 — оно уже неактуально. Перейти к актуальным объявлениям автора. Перейти к актуальным объявлениям рубрики Офисы. Аренда офиса 155.7 м2
Поделиться:
Расположение:
Московская обл., Одинцово д., Союзная улица, 7
Здание заводоуправления, 1 этаж.
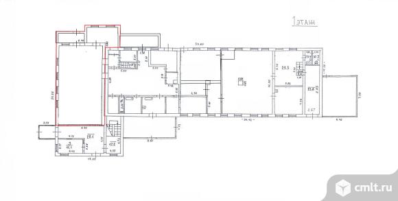
функциональное назначение объекта: офис. Описание объекта: - Площадь помещения: 155,7 м 2; - Потолок: плиты – перекрытия, декоративные панели - Армстронг; - Стены: кирпич, частично обои – краска и пластик; - Пол: бетон, керамическая плитка; - Окна: алюминий - (3 шт.), стеклопакет - (4 шт.); - Двери: Алюминий-стеклопакет - 1 шт., двери деревянные – (3 шт.); - Наличие коммуникаций: водоснабжение, отопление, электричество; - Система пожарной сигнализации. Прилегающая территория: - Охраняемая территория; - График работы: с учетом существующих арендаторов с 8:00 до 22:00 индивидуально; - Место для разгрузки-погрузки; - Места для личного транспорта и транспорта персонала. Локация помещения: - транспортная и пешеходная доступность; - близкое расположение от станции Одинцово МЦД (3 минуты пешком); - развитая инфраструктура района (вблизи магазины, аптеки, места общепита и бытовые услуги). [#7986081#] 02.02.2026 04:44
Этот сайт защищён reCAPTCHA. Конфиденциальность и условия использования. |
||||||||||
