|
Дата последней публикации объявления 01.01.2026 — оно уже неактуально.
Перейти к актуальным объявлениям рубрики Квартиры. 4-комнатная квартира 156,4 кв.м
Поделиться:
Расположение:
Москва г., ул. Шеногина
Комнат:
Тип:
Тип жилья:
Кухня-студия:
нет
Отделка:
Лифт:
да
Охрана/консьержка:
нет
Цена:
160 591 520 руб.
Прямая продажа от застройщика!
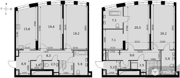
Жилой Комплекс премиум-класса. Продаётся 4-к квартира номер 502 общей площадью 156.4 кв.м. на 35-м этаже 44 этажного дома. Без отделки. Цена с учётом скидки! Особенности квартиры: - Мастер-зона с санузлом и гардеробной. Всё для вашего комфорта и удобства, включая личный санузел и гардероб. - Просторная спальня, в которой можно разместить большую кровать. - Линейная планировка - максимальная функциональность и удобство. - Окно в ванной - натуральное освещение для уюта и комфорта. - Увеличенное количество окон - дополнительное освещение и свежий воздух. - Увеличенная высота окна - больше воздуха и света. - Просторная ванная - место для расслабления и уединения. - Гостевой санузел - комфорт и удобство для ваших гостей. - Душ помимо ванной - дополнительное удобство для вашей семьи. - Постирочная - организуйте пространство для стирки и сушки вещей. - Место для игры/занятия спортом - идеальное пространство для активных детей. - Дополнительный вход - удобство для семьи и гостей. - Можно оборудовать рабочее место - комфорт для работы и учёбы. - Двухуровневая квартира - пространство и стиль в одном. - Просторная кухня - место для семейных ужинов и кулинарных экспериментов. - Линейная кухня - функциональность и практичность в одном решении. - Гардеробная - удобство для хранения и организации вещей. - Просторная гардеробная - место для вашего личного пространства. - Ниша под шкаф - компактное и удобное место для вещей. - Кладовая - дополнительное пространство для хранения. Информация о комплексе: Премиум-класс прямо на берегу Москвы-реки, с прямым выходом на набережную и потрясающими панорамными видами! На Шелепихинской набережной, расположен причал для речных трамваев. Вам станет доступна единственная столичная транспортная артерия, на которой никогда нет пробок: 20 минут до Москва-Сити, да еще и с вдохновляющими видами по пути. Входные группы домов - это индивидуальные дизайн-проекты, посвященные трем главным местам в жизни Лермонтова: Тарханам, Петербургу и Кавказу, которые объединяют сочетание эстетики и комфорта. Бурная жизнь соседей больше не сможет нарушить ваш покой, а к вам никто не постучит, если вы захотите прибавить громкость в любимом музыкальном треке или Ваши дети захотят устроить ночную пробежку! Живите только по своим правилам. Застройщик: ООО СПЕЦИАЛИЗИРОВАННЫЙ ЗАСТРОЙЩИК ЛСО. Проектная декларация на сайте наш.дом.рф 04.12.2025 01:37
Этот сайт защищён reCAPTCHA. Конфиденциальность и условия использования. |
