|
Дата последней публикации объявления 20.03.2026 — оно уже неактуально.
Перейти к актуальным объявлениям автора. Перейти к актуальным объявлениям рубрики Квартиры. Новые объявления автора в рубрике Квартиры
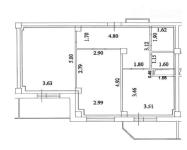
2-комнатная квартира 60,32 кв.м
Поделиться:
Расположение:
Воронежская обл., Воронеж г., Коминтерновский р-н, Независимости ул., 78
Комнат:
Тип:
Балкон:
лоджия
Санузел:
раздельный
Тип жилья:
Кухня-студия:
нет
Лифт:
да
Охрана/консьержка:
нет
Подходит под ипотеку:
да
Срок сдачи:
декабрь 2024
Цена:
6 314 901 руб.
Готовы показать объект онлайн.
Договоритесь с продавцом, в какое время и в какой программе это сделать.
жк галактика! дом сдан!
отделка в подарок! жилой комплекс расположен в коминтерновском районе. социальная и коммерческая инфраструктура здесь одна из лучших: магазины, школы, детские сады и медицинские учреждения, находится в пешей доступности от вашего нового дома. при этом отличное транспортное сообщение позволит добраться до центра воронежа менее, чем за 40 минут. на территории комплекса будет построен просторный паркинг, на первых этажах домов расположатся коммерческие помещения. концепция благоустройства жк «галактика» займет значимую часть от общей площади застройки. ландшафтное озеленение станет главной достопримечательностью жилого комплекса: 1,5 га благоустроенной территории , аллеи с вишнёвыми и сиреневыми деревьями, площадки для спорта и отдыха, скамейки для отдыха будут расположены вдоль дорожек из тротуарной плитки. большое количество игровых зон для детей разного возраста соединит различные рекреативные площадки. все это позволит взрослым почувствовать себя детьми, а детям очутиться в настоящей сказке. бесплатная помощь в подготовке документов для получения ипотеки и сопровождение сделки! звоните , расскажу подробнее! звоните , расскажу подробнее!
Адрес сайта скрыт, так как объявление не публикуется.
02.03.2026 09:51
Этот сайт защищён reCAPTCHA. Конфиденциальность и условия использования. |
