Дом 98,8 кв.м
Поделиться:
Расположение:
Воронежская обл., Рамонский р-н, Староживотинное с., Кооперативная ул.
Продаю одноэтажный Дом 98,8 м2 2025 г. постройки на 6 сотках для круглогодичного проживания в селе Староживотинное, ул. Кооперативная, по главной, асфальтированной улице, в 2 минутах при съезде, или в 22 км. от Воронежа. Дом находится рядом с хвойными деревьями, у многих на участки сосны и хвойный лес. Вокруг застройка соседей для жизни, все живут. Несколько подъездов к дому. По дороге торговый центр, магазины, всё в шаговой доступности.
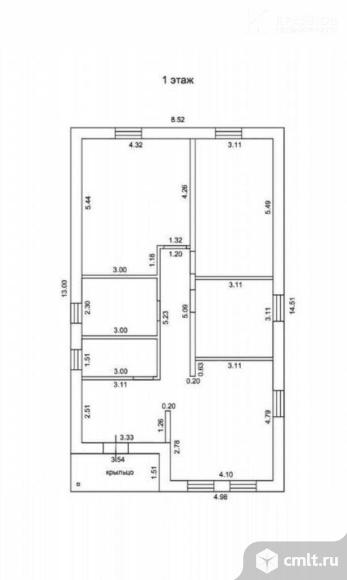
Для любителей Коттеджных поселков, чистого воздуха, спокойствия и уединений. Дом поставлен на кадастр. Кадастровый номер участка 36:25:6981000:307 6 соток. Дом 98,8 кв.м. одноэтажный в глубину участка. Установлено: - Дверь с терморазрывом Torex на гарантии; - окна Rehau 60 rese на гарантии, над окнами установлены армированные перемычки. Фундамент – плита, толщина 20 см, двойная вязка арматуры 8,10 и 12 с шагом 20 см. Бетон М300 на граните. Стены – газоблок ВКБлок PREMIUM 200х300х625 D500 В2,5 F50 с облицовочным кирпичом «под старину» (кладка под плетёную корзину) Армирование стен в 2 ряда, каждый 4 ряда. С крыльца вход в коридор, прямо бойлерная, можно установить 2 санузел, далее ванная с санузлом, дальше большая спальня с гардеробной (20 кв.м.), по второй стороне 2 спальни (17,5 и 10) Кухня гостиная 17 кв.м. Высота 3 м. Крыша металлочерепица Grand Line. Планируется теплый пол, штукатурка, шпаклёвка. Разведение электричества под клиента. Продает застройщик. Возможна чистовая, ремонт под ключ. Дом без ипотек и обременений. Чистая продажа от физического лица. Куплю дом, куплю дачу, куплю коттедж, куплю дом в Староживотинном 02.04.2026 09:52
Опубликовано в газете Камелот:
13.04.2026
Этот сайт защищён reCAPTCHA. Конфиденциальность и условия использования. |
