|
Объявление удалено автором.
Дата последней публикации объявления 09.11.2025 — оно уже неактуально. Перейти к актуальным объявлениям автора. Перейти к актуальным объявлениям рубрики Помещения, здания. Продается ПСН 1780 м2
Поделиться:
Расположение:
Ростовская обл., Батайск г., Урицкого улица, 7
Продается помещение свободного назначения, 1 этаж ТЦ "Астрасити", г. Батайск
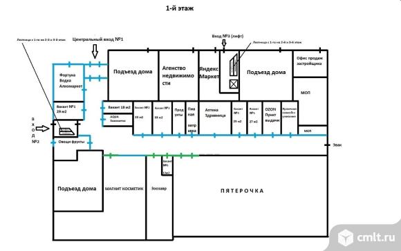
Основная информация: Общая площадь: 1 780,5 м2 (весь первый этаж торгового комплекса) Адрес: Ростовская область, г. Батайск, ул. Урицкого, 7 Цена: 220 000 000 рублей Расположение: Центральная часть города, фасад выходит на перекресток ул. Энгельса и ул. Урицкого. О здании: Трехэтажный торговый комплекс, входящий в состав МКД (236 квартир). Продается полностью весь первый этаж. Высокий автомобильный и пешеходный трафик. Отличный рекламный обзор и хорошо просматриваемый фасад. Имеется возможность размещения рекламной вывески. Несколько входов в торговый комплекс. Размещена зона разгрузки. Коммуникации и системы: Система центрального кондиционирования. Пожарная сигнализация. Инвестиционная привлекательность и арендаторы: Помещение полностью сдается в аренду, что обеспечивает стабильный денежный поток. Возможна продажа с передачей права аренды действующим арендаторам. Якорные арендаторы: Пятерочка (магазин у дома) Магнит Косметик (парфюмерия и косметика) Фортуна (алкогольная продукция) Прочие арендаторы: Аптека низких цен Химчистка "Аква" Зоомагазин "Зоозавр" "Пенная заправка" (разливное пиво) Пункт выдачи заказов Ozon Прачечная самообслуживания Торговые аппараты (вендинг) [#7579558#] 02.11.2025 04:44
Этот сайт защищён reCAPTCHA. Конфиденциальность и условия использования. |
||||||||||
