|
Дата последней публикации объявления 01.09.2025 — оно уже неактуально.
Перейти к актуальным объявлениям рубрики Квартиры. 1-комнатная квартира 36,9 кв.м - ЖК "1-й Донской"
Поделиться:
Расположение:
Московская обл., Ленинский р-н, Ленинский г.о., д. Сапроново
Комнат:
Тип:
Балкон:
балкон
Тип жилья:
Кухня-студия:
нет
Отделка:
Лифт:
да
Охрана/консьержка:
нет
Подходит под ипотеку:
да
Срок сдачи:
март 2027
Цена:
6 659 786 руб.
Максимальные скидки при 100% оплате.
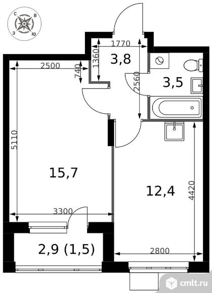
Trade-in вместо первоначального взноса - выгодно обменяйте вашу квартиру на новую! Рассрочка от застройщика. Прямая продажа от застройщика! Жилой Комплекс класса Комфорт плюс. Продаётся 1-к квартира №339 общей площадью 36.9 кв.м на 9-м этаже 24 этажного дома. Без отделки. Особенности: - Квартира доступна к покупке в Trade-In. - Линейная планировка - максимальная функциональность и удобство. - Стандартное количество квартир на этаже - оптимальный выбор для городской жизни. - Ниша под шкаф - компактное и удобное место для вещей. - Лоджия - уютное место для отдыха и тишины. - Вид из окна: двор - МЦД5 в пешей доступности - Квартал с собственной набережной - Свои 2 детских сада и школа Квартира без отделки. Чистый холст для воплощения интерьера вашей мечты. Расположение комплекса: Комплекс 1-й Донской расположен в 7 км от МКАД по трассе М-4 Дон. В нем сочетаются все плюсы комфортной городской среды и природного окружения. В проекте достаточно большой процент квартир, выходящих на 2-3 стороны света. Секции-маяки формируют у зданий визуальную L-форму, что придает застройке структуру и ритмику объемов. На ощущение динамики работает и разная этажность зданий. Теплая цветовая палитра фасадов отражает природу Дона. Вечерами дома преображаются благодаря архитектурной подсветке, выгодно выделяясь на городском фоне. Природа оказывает положительное влияние на человека на всех уровнях восприятия: через зрение, запахи, звуки, тактильные ощущения. Неподалеку от ЖК Первый Донской: Ермолинский парк, Видновский лесопарк, Жуковский парк. Транспортная доступность: Комплекс удобно расположен в 7 км от МКАД по трассе М-4 Дон (через Видное). Расстояние до Каширского шоссе составляет 12 км. Добраться до метро и центра Москвы позволяет развитая сеть маршрутов общественного наземного транспорта. Действующая ж/д станция Калинина Павелецкого направления в 15-17 минутах ходьбы (в будущем МЦД-5). Внутренняя инфраструктура: Проект 1-й Донской соседствует с бурно развивающимся районом, основная инфраструктура которого уже сложилась. В строительстве современных жилых комплексов в округе есть свои плюсы: здесь формируется продуманная и комфортная городская среда. Что касается внутренней инфраструктуры, на территории квартала будут расположены собственные муниципальные 2 детских садика и школа, которые помогут совместить приятное с полезным. Территория комплекса пронизана целой сетью живописных пешеходных маршрутов, позволяющих попасть в любой уголок района. Основные пути, как водится, «торговые». Они проходят вдоль магазинов, кафе и других представителей коммерции и отделяются от проезжей части зеленой «фито» - стеной. Также через реку Купелинка и Пуговичинский пруд с экологичным обустройством собственной набережной. Среди крупных социальных объектов предусмотрены своя поликлиника и торговый центр с примыкающей площадью для общественных мероприятий. Уют начинается с продуманного подъезда. Застройщик: ООО "СПЕЦИАЛИЗИРОВАННЫЙ ЗАСТРОЙЩИК "СТОЛИЦА ЮГА". Проектная декларация на сайте наш.дом.рф
Адрес сайта скрыт, так как объявление не публикуется.
03.07.2025 00:44
Этот сайт защищён reCAPTCHA. Конфиденциальность и условия использования. |
