Евротрешка 93 м2 с гардеробной и постирочной в ЖК бизнес-класса
Поделиться:
Расположение:
Пензенская обл., Пенза г., Лозицкой улица, 1а
Комнат:
Тип:
Санузел:
совмещенный
Тип жилья:
Кухня-студия:
нет
Лифт:
да
Подходит под ипотеку:
да
Цена:
16 000 000 руб.
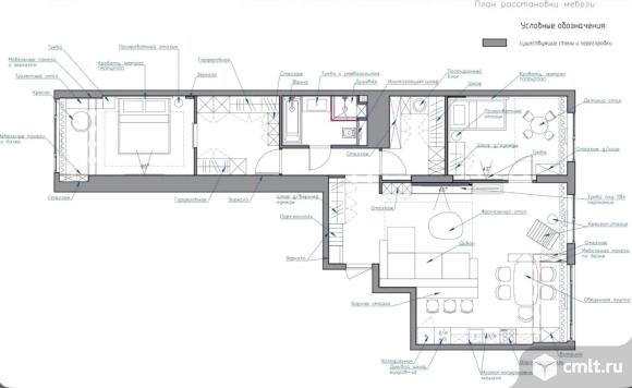
Продаётся редкая планировка в ЖК бизнес-класса. Отдельная гардеробная 9 м2 и
постирочная 6 м2 — вы забудете про шкафы в комнатах и вечный беспорядок. Основной ремонт по дизайн-проекту выполнен, финиш делаете под себя. Адрес: г. Пенза, ул. Лозицкой, 1а (ЖК Grand Park, Ближнее Арбеково) Дом: 2023 г.п., кирпично-монолитный, 20 этажей Этаж: 17 (вид на город, окна во двор и на проезжую часть) --- Что с ремонтом: Многие продают «готовый дизайнерский ремонт», но чаще всего это означает «чужие обои, которые вы захотите переделать». Здесь всё иначе: Уже сделано: Стяжка полов, штукатурка стен по маякам . Подвесной потолок . Напольное покрытие- кварцвиниловый ламинат . Стены и полы в ванной- керамогранит Разводка электрики Сантехника частично установлена Дизайн-проект с расстановкой мебели (передаётся бесплатно) Осталось Вам: Шпатлевка-Покраска стен/потолков Монтаж плинтусов, молдингов, светильников Установка кондиционеров Мебель и декор Реалистичный срок: 3–3,5 месяца на финишную отделку + мебель = въезд через 4- 5 месяцев. Почему это плюс: вы не переплачиваете за чужой вкус. Вы получаете квартиру, где всё сделано качественно на предчистовом этапе, а финиш выбираете под себя и свой бюджет. --- Планировка: Общая площадь: 93 м2 (евроформат) Кухня-гостиная — 37 м2 Спальня — 15 м2 Детская — 13 м2 Гардеробная — 9 м2 Постирочная — 6 м2 Санузел (совмещённый) — 5 м2 Прихожая/коридор — 8 м2 Что важно знать: Гардеробная 9 м2 — это целая комната для одежды, чемоданов и сезонных вещей. Спальни остаются чистыми и свободными. Постирочная 6 м2 — стиральная и сушильная машины больше не на виду. Кухня-гостиная 37 м2 — реально просторное пространство для семьи и гостей. --- О доме и ЖК: ЖК Grand Park — один из самых комфортных комплексов в Ближнем Арбеково. - Дом 2023 года, кирпично-монолитный. - Закрытая территория, видеонаблюдение, охрана. - Детская и спортивная площадки во дворе. - Подземный паркинг. - Первые этажи — коммерция (магазины, сервисы). В подъезде: 2 бесшумных лифта (грузовой и пассажирский), на этаже всего 5 квартир, колясочная, санузел в холле. --- Вид и локация: 17 этаж, окна на две стороны: восток и запад. Одна сторона выходит в тихий двор Другая — на проезжую часть (панорама города, огни вечером) ул. Лозицкой, 1а, Ближнее Арбеково. Вся инфраструктура рядом, удобный выезд на основные магистрали. --- Юридическая чистота: Один собственник Без обременений (не в залоге, не в ипотеке) Свободна от регистрации Документы готовы к сделке Любые форматы расчёта: наличные, подходит под ипотеку --- Звоните, пишите в MAX/Telegram — покажу квартиру в удобное время. [#8158222#]
Сегодня 04:54
Этот сайт защищён reCAPTCHA. Конфиденциальность и условия использования. |
