|
Объявление удалено автором.
Дата последней публикации объявления 06.11.2025 — оно уже неактуально. Перейти к актуальным объявлениям автора. Перейти к актуальным объявлениям рубрики Помещения, здания. Продается ПСН 29.6 м2
Поделиться:
Расположение:
Владимирская обл., Киржачский р-н, Киржач г., Некрасовская улица, 28
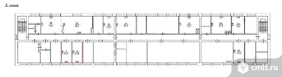
Нежилое помещение площадью 29.6 кв.м. Адрес: Российская Федерация, Владимирская область, м.р-н Киржачский, г.п. город Киржач, г Киржач, ул Некрасовская, д. 28, помещ. 3. Кадастровый номер: 33:02:010705:550. Номер, тип этажа, на котором расположено помещение, машино-место: Этаж № 2. Кадастровые номера иных объектов недвижимости, в пределах которых расположен объект недвижимости: 33:02:010705:271. Кадастровые номера объектов недвижимости, из которых образован объект недвижимости: 33:02:010107:91. Ограничение прав и обременение объекта недвижимости: не зарегистрировано. Кирпичное здание 1980 года постройки расположено в центре города на 1 ой линии, рядом торговые центры, администрация. Большая проходимость. Планировка помещений кабинетная. Высота потолков - 3,84 м. Основное назначение - офисное помещение. Вход в помещение общий из общей входной группы. Доступ в помещение - пропускная система. Общее состояние помещения - косметический ремонт. В помещении имеются: окна, с/у, канализация/водоотведение, центральное отопление, выделенная электрическая мощность -1,5 кВт. Парковка - стихийная. Продавец юридическое лицо. Цена указана с учетом НДС. Звоните, оперативно ответим на все ваши вопросы. [#7545840#]
02.11.2025 04:42
Этот сайт защищён reCAPTCHA. Конфиденциальность и условия использования. |
||||||||||
