|
Объявление удалено автором.
Дата последней публикации объявления 06.11.2025 — оно уже неактуально. Перейти к актуальным объявлениям автора. Перейти к актуальным объявлениям рубрики Помещения, здания. Продается ПСН 30.6 м2
Поделиться:
Расположение:
Владимирская обл., Киржачский р-н, Киржач г., Некрасовская улица, 28
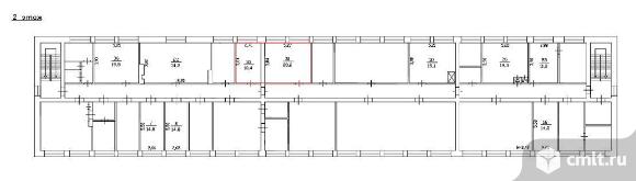
Нежилое помещение площадью 30.6 кв.м. по адресу: Российская Федерация, Владимирская область, г Киржач, ул Некрасовская, д. 28, помещ. 7 Кадастровый номер: 33:02:010705:554 Номер, тип этажа, на котором расположено помещение, машино-место: Этаж № 2 Вид, номер, дата и время государственной регистрации права: Собственность 33:02:010705:554-33/126/2023-1 от 15.09.2023 Ограничение прав и обременение объекта недвижимости: не зарегистрировано. Кирпичное здание 1980 года постройки расположено в центре города на 1 ой линии, рядом торговые центры, администрация. Большая проходимость. Планировка помещений кабинетная. Высота потолков - 3,84 м. Основное назначение - офисное помещение. Вход в помещение общий из общей входной группы. Доступ в помещение - пропускная система. Общее состояние помещения - косметический ремонт. В помещении имеются: окна, с/у, канализация/водоотведение, центральное отопление, выделенная электрическая мощность -1 кВт. Парковка - стихийная. Продавец юридическое лицо. Цена указана с учетом НДС. Звоните, оперативно ответим на все ваши вопросы. [#7545837#]
02.11.2025 04:42
Этот сайт защищён reCAPTCHA. Конфиденциальность и условия использования. |
||||||||||
