|
Дата последней публикации объявления 25.09.2025 — оно уже неактуально.
Перейти к актуальным объявлениям рубрики Дома, дачи. Новые объявления в рубрике Дома, дачи
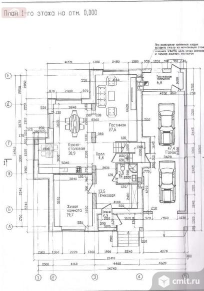
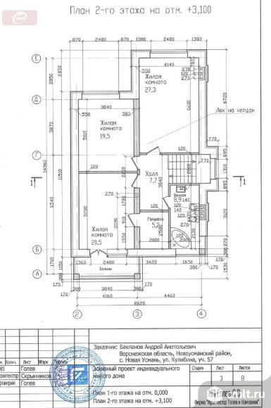
Коттедж 257,9 кв.м
Поделиться:
Расположение:
Воронежская обл., Новоусманский р-н, Новая Усмань с., Кулибина ул., 57
Предлагаем Вашему вниманию шикарный двухэтажный коттедж в новом престижном мкр Новой Усмани Развитие. Дом 2015 года постройки, прошел все усадки! Стены из газосиликатных блоков в 2 ряда, общая толщина 400 мм, облицованы старооскольским керамическим кирпичом, кровля - металлочерепица Tegola, фундамент монолитный железобетонный армированный, перекрытия железобетонные, отмостка по периметру. Все коммуникации подключены, лицевые счета открыты, смонтирована система водяных теплых полов, дом оборудован сигнализацией. Участок ровный, прямоугольный, полноценные 10 соток, огорожен по периметру металлопрофилем, по фасаду - кирпичный забор. Подъездные пути хорошие. Отлично продуманная современная планировка, просторные светлые комнаты, большая зонированная кухня-гостиная, отдельно выделена топочная, полноценные санузлы на обоих этажах, гараж на 2 машины с автоматическими воротами. В шаговой доступности детский сад, Храм, остановка общественного транспорта. Полное юридическое сопровождение сделки. Документы готовы. Подходит под ипотеку, возможна оплата материнским капиталом, жилищными сертификатами. Помогаем реализовать не проданное жилье покупателя. Все торги при просмотре. По техническим причинам Вы можете не дозвониться с первого раза. Перезвоните, пожалуйста, или напишите в чат. Мы на связи 24/7 и ждем Вашего звонка.
Адрес сайта скрыт, так как объявление не публикуется.
04.09.2025 12:40
Этот сайт защищён reCAPTCHA. Конфиденциальность и условия использования. |
