Дом 185 кв.м
Поделиться:
Расположение:
Воронежская обл., Рамонский р-н, Медовка д., улица Генерала Денисова, 20
Готовы показать объект онлайн.
Договоритесь с продавцом, в какое время и в какой программе это сделать.
Код объекта: 1268458.
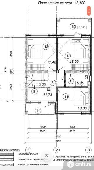
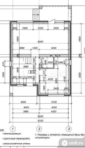
Дом общая площадь 185 м,кв. состоит из четырех раздельных комнат, два санузла, кухня-гостиная. Также с кухни выход на террасу. Высота потолка в доме 3 м. - Фундамент- армированная лента глубиной 1,2 + подъем ростверка 30см. Бетон М300.Утепленная черновая стяжка, под ней пеноплэкс 30мм. - Стены дома газосиликат 250+ облицовочный кирпич, утепление пенопластом, - Мягкая кровля, утепление кровли 200 мм. - Окна Rehau профиль 70 мм, стеклопакет в 3 стекла 40мм. Стекло мультифункциональное. Дом сдаётся с предчиствой отделкой. Коммуникации вода скважина 45м, канализация септик 3 кольца, свет подведен. Газ оформляем сразу на нового собственника. Участок 8 соток (20 м по фасаду х 40 м в длину), ровный, размежван. На участке растут деревья. Дорога асфальт. Звоните, приезжайте на просмотр! 02.12.2025 10:05
Этот сайт защищён reCAPTCHA. Конфиденциальность и условия использования. Похожие объявления автора
|
