Индивидуальный жилой дом 500 кв.м., Ленинское Ленинградская область
Поделиться:
Расположение:
Ленинградская обл., Выборгский р-н, Ленинское п., Мира улица, 10
Продается через электронные торги на площадке ЭТП ГПБ Индивидуальный жило дом площадью 500,2 кв.м., расположенный по адресу:
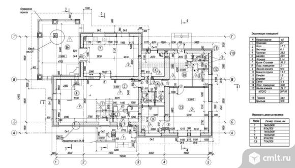
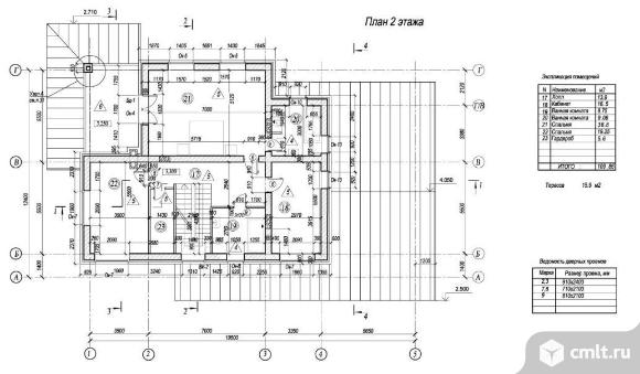
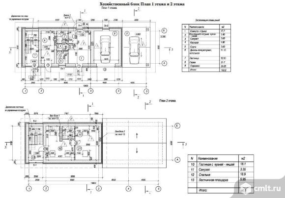
ЛО, Выборгский район, МО "Первомайское сельское поселение", пос. Ленинское, улица Мира, д.10 Год построки: 2019 Кадастровый номер: 47:01:1704003:396 Дом распложен на земельном участке площадью 3022 +/- 38 кв.м. Категория земель: Земли населенных пунктов Виды разрешенного использования: под строительство малоэтажной коттеджной застройки. Кадастровый номер: 47:01:1704003:80 Характеристики и описание объекта Жилой дом: Цоколь здания облицован путиловским камнем; Горизонтальная гидроизоляция стен - цементно-песчаный раствор 1:2, толщиной 35 мм с водостойкими добавками из жидкого стекла; Наружные стены 3-х слойные - кирпич пустотелый строительный, минераловатные плиты - 75 мм, воздушная прослойка 25 мм, лицевой кирпич пустотелый; Внутренние перегородки - гипсобетонные, пазогребные, толщиной 100 мм; Кровля - мягкая черепица по деревянной обрешётке; Этажность: 2, мансарда Хозяйственны блок: Цоколь здания облицован искусственным камнем; Горизонтальная гидроизоляция стен - цементно-песчаный раствор 1:2, толщиной 35 мм с водостойкими добавками из жидкого стекла; Наружные стены 3-х слойные - кирпич пустотелый строительный, минераловатные плиты - 80 мм, воздушная прослойка 20 мм, лицевой кирпич пустотелый; Внутренние перегородки - гипсобетонные, пазогребные, толщиной 100 мм; Кровля - гонтовые плитки; Этажность: 2 [#8208001#]
Вчера 05:12
Этот сайт защищён reCAPTCHA. Конфиденциальность и условия использования. |
