2-комнатная квартира 51,3 кв.м
Поделиться:
Расположение:
Воронежская обл., Воронеж г., Левобережный р-н, Чебышева ул., 6
Продаётся 2-к квартира в тихом районе города Левобережного по ул. Ул. Чебышева. Кирпичный Дом той ещё Советской постройки 1992 г., когда строилось на века. Тихий, зелёный двор с детской площадкой, рядом школа, детский сад № 71, Магнит, недалеко остановка общественного транспорта Завод ГОО, хорошая развязка и много маршруток. Можно доехать до рынка, торгового центра и оптового рынка.
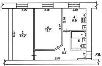
Квартира под сдачу, или для жилья в таком виде, какой Вы видите на фотографиях. Это своеобразный ремонт с пост Советского времени, прям современный по тому времени , когда сложно что-либо достать. Ковры, дорожки, покрывала и накидки. Тихие соседи, всё размерено, нет шума и суеты. 2-к комнатная квартира 51,3 кв.м. Гостиная 15,4 кв.м. Спальня 12,9 кв.м. Кухня 7,8 кв.м. постелен линолеум Ванная комната 5 кв.м. плитка Санузел 2 кв.м. плитка Коридоры 6 кв.м. Лоджии 3,2 кв.м., и 0,8 кв.м. Высота потолков 2,57 м. Тамбур на 2 соседей. Отличный вариант для инвестиций, всегда будет популярна для сдачи. Квартира полностью меблирована, со всей техникой, есть все для жизни. Удобные большие лоджии, нет жары летом, достаточно комфортно. А также всегда тепло зимой, квартира не угловая, очень тёплая. Из спальни выход на маленький балкон. Можно полностью все убрать и сделать свой современный ремонт, но в этой квартире есть изюминка советского времени в стиле винтаж. В квартире остаётся вся мебель, телевизор, холодильник, квартира в настоящее время сдаётся на долгий срок хорошим квартирантам - семье с ребёнком! Если мебель не нужна, её могут забрать. Все обсуждается! Один взрослый собственник. Звоните, пишите, с удовольствием покажем! #купитьКвартируВоронеж Этот сайт защищён reCAPTCHA. Конфиденциальность и условия использования. Похожие объявления автора
|
