3-комнатная квартира 61,6 кв.м
Поделиться:
Расположение:
Воронежская обл., Воронеж г., Советский р-н, Молодогвардейцев ул., 11А
Комнат:
Тип:
брежневка, кирпичный
Балкон:
балкон
Санузел:
раздельный
Тип жилья:
вторичный рынок, 1974 г.
Кухня-студия:
нет
Отделка:
Лифт:
нет
Материал окон:
пластик
Охрана/консьержка:
да
Подходит под ипотеку:
да
Цена:
4 300 000 руб., торг
Кадастровый номер:
36:340505056:4897
Вы можете проверить информацию об объекте недвижимости по этому номеру на сайте
Росреестра.
Подробнее
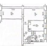
Вашему вниманию уютная квартира в замечательной локации Молодогвардейцев 11А. Развитая инфраструктура и транспорт. Две школы: Гимназия им.Бунина и лицей №5. Пятёрочка, сбербанк, остановка, магазин "Курский", парк Танаис в 300 метрах от подъезда! Отличная планировка: 3 изолированные комнаты, застеклённый балкон и раздельный санузел. Окна выходят на две стороны(во двор и на гимназию №5). Идеально подойдёт для семьи с детьми.
В 2021году отремонтирован фасад, коммуникации в хорошем состоянии, кладовка в квартире.Соседи приличные. Наземный паркинг, детская площадка, косметический ремонт, также имеются: телефон, интернет, кабельное телевидение, счётчики холодной, горячей воды и газа,домофон. Один собственник. P.S. Звонить во второй половине дня. 25.03.2026 23:17
Опубликовано в газете Камелот:
30.03.2026
Этот сайт защищён reCAPTCHA. Конфиденциальность и условия использования. Похожие объявления
|
