2-комнатная квартира 52 кв.м
Поделиться:
Расположение:
Воронежская обл., Новоусманский р-н, Новая Усмань с., Ленина ул., 263 б
Комнат:
Тип:
Балкон:
лоджия
Санузел:
раздельный
Тип жилья:
Кухня-студия:
нет
Лифт:
нет
Охрана/консьержка:
нет
Подходит под ипотеку:
да
Цена:
5 500 000 руб.
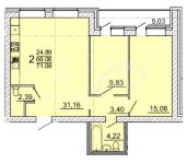
По техническим причинам Вы можете не дозвониться с первого раза. Перезвоните, пожалуйста, или напишите в чат. Мы на связи 24/7 - Продаётся двухкомнатная квартира в самом Центре Новой Усмани, на улице Ленина д. 263 б , в здании ТЦ" Аксиома" на 6/10 эт 2014 г постройки дома, 52кв. м, не угловая с отличным панорамным видом! Лоджия застеклена, комнаты изолированные, раздельный с/у, кухня 9 кв. м. В квартире начат косметический ремонт, везде будут сделаны натяжные потолки.. А дальше вы сами можете внести свои дизайнерские идеи на свой вкус , так как вам захочется. Современный грузовой лифт, чистый подъезд, доброжелательные соседи. Двор изолирован, видео-наблюдение, детская площадка. Рядом детский сад. Отлично развитая инфраструктура в нескольких минутах ходьбы, до реки Усманка идти около 7 мин. Здесь есть всё, что нужно для комфортного проживания. Возможна оплата жилищными сертификатами. -Ваш интерес и желание приобрести недвижимость очень важны для нас. Ждём Вашего звонка.
02.12.2025 10:12
Этот сайт защищён reCAPTCHA. Конфиденциальность и условия использования. Похожие объявления автора
|
