|
Объявление удалено автором.
Дата последней публикации объявления 16.10.2023 — оно уже неактуально. Перейти к актуальным объявлениям автора. Перейти к актуальным объявлениям рубрики Помещения, здания. Новые объявления автора в рубрике Помещения, здания
Продается ПСН 999.2 м2
Поделиться:
Расположение:
Москва г., Федосьино улица, 10
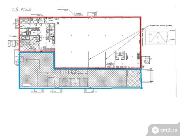
К продаже предлагается здание площадью 999,2 кв.м:
1-я линия домов по ул. Федосьино Здание одноэтажное, без подвала. Планировка смешанная, торговый зал 540 кв.м. с возможностью увеличения (легкие перегородки) Несколько отдельных входов, включая зону разгрузки. Высота потолков 3,5м - 4,5 м Паркинг на территории перед зданием. Долгосрочный договор с продуктовым супермаркетом «Пятерочка». [#5313702#] 02.10.2023 04:58
Этот сайт защищён reCAPTCHA. Конфиденциальность и условия использования. |
||||||||||
